SP110Sanlorenzo creates loft as a high-performance yacht

Boote Exclusiv

 · 08.03.2023

Hydroelectric power station: three MAN diesels each deliver up to 1471 kilowatts to the MJP waterjets.  The GRP hull designed by Marco Arnaboldi travels efficiently through the water at speeds of up to 40 knots
Photo: Guillaume Plisson, Erik Levfander (Interior)
Speed or comfort? The SP110 from Sanlorenzo harmonises both: with a Zuccon exterior and an interior by Piero Lissoni. An Open with water jets - and many hidden tricks.

Text: Norman Kietzmann

For Sanlorenzo, simply letting things run their usual course is out of the question. The shipyard from Ameglia surprises time and again with models that take a new direction. The latest example is the SP110. It races across the water at an impressive 40 knots, but nothing else on board the 33 metre boat is as usual in the high speed category. Dynamism and sportiness are by no means seen as opponents to comfort. Rather, they are accomplices for one and the same cause.

The SP110 is the first model in a new series whose abbreviation stands for "Smart Performance". The briefing came from someone who knows a thing or two about high-kilowatt boats: Tilli Antonelli. As the founder of Pershing Yachts in 1995, the Italian had a decisive influence on the typology of high-performance yachts. Today, Antonelli works as a product developer for Sanlorenzo and has set his sights on the open segment. "Of course we have big engines and waterjets. But I didn't want to convey the feeling of something aggressive," was the brief given to the design team.

From architecture to yacht design

"The aim was to combine a high-performance yacht with a very comfortable and luxurious loft," says Bernardo Zuccon, who designed the exterior of "Almax", the first SP110. Together with his sister Martina, he runs the creative studio Zuccon International Project, which their parents Gianni and Paola Zuccon founded in 1978. Although he was born with a penchant for boats, Bernardo Zuccon initially studied architecture. "My approach is completely different to that of traditional yacht designers. They think of a boat first and foremost as a sculpture and only then as a place to live. For me, it's the other way round," says the native of Rome, born in 1982.

Most read articles

1

2

3

The spatial qualities are revealed less in the sleek side views of a yacht than in its cross-section. And that's where the concept begins for him. "Normally, open-plan formats only have a main deck for the living area and a lower deck for the sleeping quarters. In this case, we tried to create a connection between the two levels," says Zuccon, summarising the approach. When you open the large sliding doors on the aft deck and step inside, you find yourself halfway between the two levels. You look up into the large main deck. At the same time, you can see a second, somewhat smaller living area on the lower deck: the lounge.

How do you like this article?

Piero Lissoni is art director for Sanlorenzo

This is where Piero Lissoni comes into play. The Milanese architect and designer has been working as Art Director for Sanlorenzo since 2018. The interior of the SP110 was designed by him. "The innovation lies in the fact that we have set back part of the main deck, creating a special kind of balcony. In between, we inserted a staircase that brings the two living areas together," explains Lissoni. The transition from one level to the other is anything but banal. It resembles stepping onto a show staircase. "The steps are very thin. They look like the wings of an aeroplane. With their carbon fibre and stainless steel construction, you'd think they were on a sailing boat. You can feel the lightness in their design," says the architect.

Another task was to open up the boundaries of the room: "We designed these large windows that extend from the ceiling to the floor. When you sit on the armchair or sofa, you feel the proximity to the water. The windows of the SP110 help you to see something completely unexpected. There's no comparison with other boats with a second or third deck," says Piero Lissoni. The physical distance between the people on board and nature is overcome. Reflections of the sun on the surface of the water appear as dancing patterns on the ceilings of the interior spaces. The windows cover almost 80 per cent of the main deck. The remaining elements echo the dark tint of the glass to create a homogeneous surface. In order to optimise diesel consumption and performance, weight was saved by using laminated glass.

The staircase connects the different levels with each other
Photo: Guillaume Plisson, Erik Levfander (Interior)

Furniture defines different zones

The main deck is designed as a continuous space that is not diminished by partitions. Nevertheless, the furniture defines different zones. The steel Ferro dining table (design: Piero Lissoni for Porro) has gently rounded edges and is in a warm, characterful red colour. Two white Panton Chairs and several Wire Chairs by Charles and Ray Eames (both by Vitra) are grouped around it. The seating group is defined by four LC3 armchairs (Cassina) by Le Corbusier. Behind them is an antique wooden bench from China. A small side table designed by Michele De Lucchi for Memphis Design provides a splash of yellow colour. Works by Italian photographer Veronica Gaido can be seen on the walls: Interpretations of the terracotta warriors in Xi'an. "When you walk through the room, you can feel the culture. The things look grown and not like something from a catalogue. It's just like being at home," says architect Lissoni, summarising the effect.

In the living area of the lower deck, a lounge chair (Vitra) by Charles and Ray Eames catches the eye. A sofa from the Dock collection (B&B Italia) by Piero Lissoni allows the light-coloured upholstery to float above the floor on a wooden platform. The highlight, however, is the completely mirrored back wall. It visually doubles the width of the room. At the same time, it conceals access to the four cabins with space for up to eight people. In another layout configuration, the owner's cabin is enlarged by the area of a guest bedroom. Mirrored glass walls give the accommodation a sense of space and hide the screens at the rear. "You get the feeling that there is no television on board at all, even though we have equipped all the bedrooms with them," says the Milanese architect happily. In the master bedroom, the doors and side walls of the walk-in wardrobe are made of ribbed glass to allow the two areas to merge visually. The surface structure of the glass ensures diffuse light refraction. This transforms the illuminated wardrobe into a giant lantern that lends the bedroom a pleasant, cosy atmosphere.

Owner's cabin: warm light streams out of the wardrobe through ribbed glass doors. Mirrors and wooden louvres extend the length of the room
Photo: Guillaume Plisson, Erik Levfander (Interior)

Sanlorenzo combines open space with hidden functions

All the ceilings on board the SP110 from Sanlorenzo are clad with specially manufactured wooden panels with a groove-like structure. They absorb the reverberation and thus ensure better acoustics. Lights, security systems, loudspeakers and openings for the air conditioning system are also invisibly embedded in the relief surface. Another special feature of the yacht is the galley between the upper saloon and the steering deck. It can be closed off with solid walls or opened up with glass panels. In the latter case, it is possible to look onto the bridge and from there out to sea through the windscreen.

The yacht unfolds its full width of 8.20 metres on the aft deck and beach club. Seating is provided by a large, free-standing sofa - a specially modified version of the Extrasoft sofa designed by Piero Lissoni for Living Divani. When the upholstered sections slide to the side, a table moves upwards as if by magic, transforming the sofa into a dining area. Piero Lissoni also installed a sofa and a free-standing sunbathing area with hidden functions on the open space at the bow. When the upholstered furniture is opened, a large dining table appears with space for more than twelve people. Customised awnings can shade this area as well as the aft deck. "The SP110 is 33 metres long. But when you stand on the main deck, you get the feeling that the yacht is twice as big," says Piero Lissoni, describing his impressions.

One striking detail is the panel protruding from the roof, which stands out clearly from the rest of the exterior with its orange colour.

I wanted to create minimalist lines. Conversely, the yacht should also be memorable." - Bernardo Zuccon

The coloured roof cornice serves as a widely visible distinguishing feature of the SP110. At the same time, it frames another ceiling level, which has been lowered into the roof together with its white seat cushions. After all, the aerodynamic profile of the yacht should not be interrupted. Even from a distance, this area is not noticeable at all. A folding mini flybridge allows the yacht to be steered in calm seas and at a moderate speed.

The sun lounger at the bow is surrounded by sea air, the cleats and anchor winch are concealed
Photo: Guillaume Plisson, Erik Levfander (Interior)

Solar roof ensures a quiet night

In front of the "terrace" is a large, continuous roof area. Its geometry was specially designed to be fitted with six kilowatts of solar panels. They collect electricity for powerful lithium-ion batteries, which keep the lighting, air conditioning and other services running for one night. The noise and exhaust fumes of a diesel generator can therefore be dispensed with. The yacht can also switch to silent-clean mode when anchored in a bay or when swimming. If the sliding doors on both sides of the dining table are opened, there is no need for air conditioning even at the height of summer. The free draught then provides natural cooling.

The hull, designed by Marco Arnaboldi, is designed for high fuel efficiency. In front of the three MJP waterjets are the same number of MAN gensets, each with 1471 kilowatts, which can be used individually, in pairs or in threes - depending on the speed and dynamics at which "Almax" is to move. Compared to propellers, water jet drives have the advantage that they react less sensitively to fluctuations in displacement and guarantee maximum performance and comfort even in rough seas. In addition, the draught is only 1.30 metres, even when fully loaded, so that almost any beach can be reached. With the SP110, Sanlorenzo has taken the character of an open to a new level.

Clear wedge shape: the monocrystalline solar cells generate up to six kilowatts of electricityPhoto: Guillaume Plisson, Erik Levfander (Interior)Clear wedge shape: the monocrystalline solar cells generate up to six kilowatts of electricity

Technical data of the SP110

  • Length over everything: 33,04 m
  • Length (waterline): 29,04 m
  • Width: 8,20 m
  • Depth: 1,25 m
  • Displacement (full): 113 t
  • Material: GRP
  • Motors: 3 x MAN V12
  • Engine power: 3 x 1471 kW
  • Waterjets: 3 x MJP CSU 550
  • Speed (max.): 40 kn
  • Speed (travelling): 36 kn
  • Fuel: 12 000 l
  • Water: 1500 l
  • Guests: 6-8
  • Crew: 5
  • Concept: Tilli Antonelli
  • Construction: Studio Arnaboldi
  • Exterior design: Zuccon International Project
  • Interior design: Piero Lissoni
  • Class: RINA Pleasure
  • Shipyard: Sanlorenzo, 2022
  • Broker: Lenger Yachts
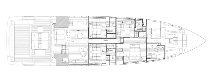
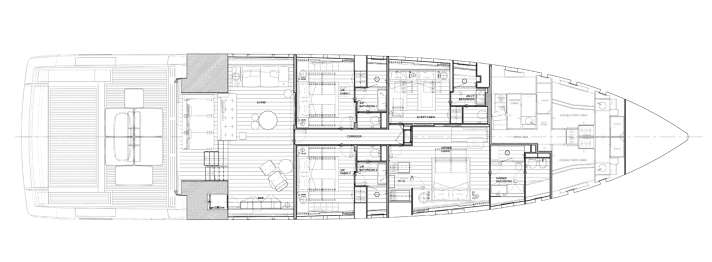
Main deck: The cockpit occupies 50 teak square metres above the tender garage. The Boffi galley is located between the bridge and the saloonMain deck: The cockpit occupies 50 teak square metres above the tender garage. The Boffi galley is located between the bridge and the saloonLower deck: The lounge is adjoined by two VIP cabins, a double cabin and the owner's cabin. The crew of five sleeps at the very frontLower deck: The lounge is adjoined by two VIP cabins, a double cabin and the owner's cabin. The crew of five sleeps at the very front

Also interesting:

Most read in category Boats