The platform business is a highly lucrative one for Amels. It attracts owners with minimally customisable exteriors and a well thought-out design that allows them to make the most of the interior. Customers receive a fairly priced yacht of a high, consistent standard that is delivered quickly; Amels usually launches one model without an owner in order to reduce waiting times. The Dutch call this concept Limited Editions.
Now, with the Amels 60, there has been a change in design for the first time. If you want to know where the design break is to be found, go to the sun deck of the 60 metre long steel and aluminium building. Tim Heywood gave the unofficial predecessor, the 180 and 171, which were built 25 times, a wave-shaped windscreen on the sides. Espen Øino now opted for a trapezoidal shape. Edges instead of curves. The new discs make a 180 look like a tiny boat on its neighbouring berth. Yet "Come Together" has just as many decks, albeit with more space in between. In terms of cubage, this results in an additional volume of 160 gross tons - which is still not much when you consider the five metre difference in length and the increasing voluminisation of yachts. And this is precisely where the greatest merit of Øino's design lies: the latest limited edition creation does not show its impressive height.
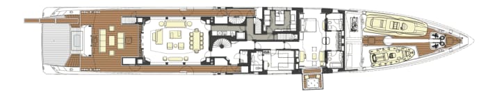
Up here, the new open space also refers to the width. The equipment carrier is not supported by thick legs in the style of a Jeff Koons creature as on the 180, Øino has the table for 14 people flanked by benches. The plateau is even so airy that a sliding glass door installed at a later date screens off the rectangular jacuzzi at the front. "The tunnelling effect was simply too strong during evening dinners," reports Captain Dan Khedun, who has a lot of experience on Amels yachts. Helicopters weighing up to three tonnes land at the front end when the railing is folded down. A look at the foredeck reveals two jet skis and tenders, which are stored open and lowered into the water by crane. This is how the 74 metre long Amels 242 is handled. On the Amels 60, the storage trestle on the port side is particularly close to the bulwark, where a nine-metre-long tender from Yachtwerft Meyer is parked. "No other 60-metre yacht has a tender of this size," says Khedun confidently. "The tender is so big that nobody gets wet, even during transfers in rough seas."
Amels is the most successful player on the market for semi-custom formats over 55 metres in length. The yacht builders emerged from the family-run shipbuilding giant Damen Shipyards in 1982 and launched their first limited edition in 2007 with the 171, which is now known as the 180 when extended at the stern. The idea for the platform concept came from Kommer Damen, now Chairman of the Supervisory Board of the shipyard group, which has been standardising shipbuilding processes in the commercial sector since the 1960s. Seven units of Heywood's designed Amels 242 are already afloat, with another under construction. With the Amels 80, again from the computers of Espen Øino International, an 80-metre model is preparing to continue the ordering tradition. Welding is already underway on two hulls.
Limited editions are always characterised by practical details such as the wide gangways that lead directly to a day toilet on the port side of the bridge deck. Unlike on the 180, the life rafts on the "Come Together" disappear behind flaps in the superstructure. Øino tames the first steeply diagonal stem by means of the foredeck's negative step, which lowers the bow and makes it less intimidating. According to Captain Khedun, this does not affect seaworthiness: "The bow shape means that the hull does not pitch at all. The foredeck is not flooded as much by waves as on the 180."
Espen Øino says of the design process for the Amels 60: "It was a little different because you're not designing for a single owner, but for a whole group of potential customers. Therefore, thorough market research into what this target group is looking for is crucial to the success of the whole project." The Norwegian's office, which is located at the head of the northern pier of Monaco's Port Hercule, has mainly worked on customised yachts to date. "You can't think too crazy because you're trying to get the maximum percentage of people. At the same time, it has to look a bit different - it can't be just another boat. It's a fine line."
It is therefore not surprising that his design also relies on curves. The largest curve is the bridge cam, a detail that Tim Heywood already attached great importance to. A kind of signet of the limited editions. The trapezoidal windows at the front of the main deck and the diagonal drop in the deck line at saloon level are eye-catching from a distance. A new idea is the open stern with a seamless transition from the main deck to the bathing platform, which is more commonly found on 80 metre formats, according to Khedun. The original client added an individual touch with the pebble grey metallic colour scheme.
The first owner of "Here Comes The Sun" ordered another "Beatles-Amels" with "Come Together" and made a change from 83 to 60 metres and from custom to semi-custom. However, he sold a few months before the planned launch. A development that left the completed Winch interior virtually untouched. It seems as if the variety of natural materials, unusual finishes and surfaces is a direct result of the limited possibilities of the "standardised façade". The London-based design studio, which has already realised 20 projects in 25 years of collaboration with Amels, is the perfect partner because Winch deliberately avoids a signature style. Jim Dixon, Director Yachts & Aviation, explains: "We have used mostly pure and natural materials to emphasise the relaxed atmosphere of a 'house on the beach'. Stones and woods with interesting surface layers create unique and tactile surfaces."
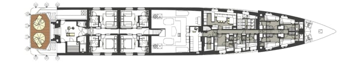
This creates an opulence that is not obtrusive and is offset by a classic layout that works both privately and on charter. The trend towards a dedicated owner's deck is not followed; primary guests continue to reside in a suite on the forward main deck. The floor, walls and furniture are covered in matt oak veneer with a pleasant, but not always homogeneous, wavy grain. Two panels of dense horsehair break through the leather-clad ceiling, even above the bed. Known as the filling for car seats, this raw material requires special care. "The hair has been trimmed with a trimmer and needs to be combed from time to time," explains Khedun, pointing to the indirectly illuminated eel skin on the wall behind the desk. The wine-red fish skin looks even more prominent because the decoration is restrained and there is hardly any art hanging due to the abrupt change of ownership. On the starboard side, the side wall folds down to form a balcony, for a morning coffee, for example. The dressing room is framed by bathrooms that are visually defined by Portoro marble washbasins with a hammered bronze basin and brass fittings.
The galley is located to starboard aft and opposite is a VIP suite, which the crew call the Madame cabin due to the actual orientation of the first owner. List GC built a TV cabinet for the foot end, topped by a stone slab with a unique shell surface. The Austrian interior fitters put the Winch ideas into practice over an area of 400 square metres. A helix sculpture made of walnut rods and ornamental milled wood panelling run through the stairwell. The seemingly endless list of materials includes mother-of-pearl, angel hair quartz and silk carpets.
Aft in the saloon, the surface of the dining table consists of almost 100 sheets of veneer. It seats up to eight people, while the other dining options are in the open air. Khedun points out that people like to have breakfast on the bridge deck aft. However, a windbreak had to be fitted to each side of the deck afterwards. This reveals an advantage of the platform concept: the base is continuously refined. The upper deck saloon features a bar made of Golden Spider marble, a console table made by Hull Studio from London and a guitar - an indication that the spontaneous buyer did not just take over the yacht's name.
At full charter capacity, 14 crew members look after up to twelve guests who pay Y.CO 450,000 euros for a week on "Come Together". Between delivery in June and September, the owner was on board for three weeks, after which there were three charter trips with younger guests. They are more active, but less demanding. "There is more interaction, people are friendlier," says Khedun happily. "We're moving away from seven-course menus and towards family-orientated service with authentic dishes, for example from local fishermen."
In the engine room, the captain reports that charter guests have been pleasantly surprised by the fuel costs. The Amels 60 is powered by a hybrid propulsion package as standard, which enables a maximum of 15.5 knots and 4500 nautical miles of non-stop cruising at 13 knots. The system consists of two main propulsion engines from MTU, each with an output of 1080 kilowatts, and two shaft generators and two diesel generators. Dan Khedun: "We use the shaft generator mode the most. From around ten knots, the load is sufficient to generate enough power to keep the diesel generators idle. This is useful on long passages of two hours or more and covers the operation of the laundry, air conditioning, lighting and galley. If the load becomes too great, batteries take over parts of the hotel function." The latter are stored under the bathing platform and cannot power the drive. Nevertheless, bays are crossed at up to seven knots with low vibration and noise when the propulsion units and active 250-kilowatt generators from Scania are asleep.
It is not surprising that the Amels 60 also appeals to those owners who previously owned individual boats. With the launch of the second 60, it turned out that the possibilities for exterior customisation were greater than expected. Instead of the large trapezoidal hull windows, "Entourage" was given a seemingly continuous band of glass. The Dutch are building three more units, all of which have already been sold. Interested parties currently have to wait two and a half years or purchase "Come Together" for 65.95 million euros. Broker Y.CO recently reduced the price by an impressive 3.5 million euros.

Stellvertretender Chefredakteur BOOTE EXCLUSIV