Der Weg vom Yacht-Wunsch zur passenden Werft kann sehr kurz sein, langes Suchen nach dem idealen Bauplatz entfällt ebenso wie zeitfressende Qualitätsvergleiche. „Wir haben bereits den 90-Füßer ,LeVen‘ für diese Familie gebaut“, erklärt Bram Kooltjes, Geschäftsführer von Van der Valk, „und jetzt wünschten sich die Eltern dieses Eigners ihre eigene Custom-Yacht, so um die 24 Meter.“ Allerdings hatten die Auftraggeber von „Lady Lene“ bereits ein stattliches Alter erreicht und so füllte sich die Anforderungsliste für die niederländische Werft mit zahlreichen Punkten, die sich mit „großzügig und überdurchschnittlich komfortabel“ bis hin zu „barrierefrei“ zusammenfassen lassen. „Ein großes Achterdeck, separater Speisesaal, Panorama-Deck“, zählt Kooltjes auf, „aber vor allem sollte das Layout voll rollstuhlgerecht sein.“
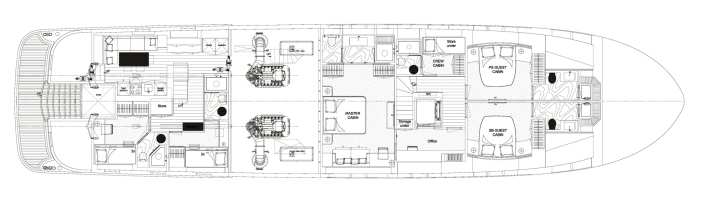
Das hieß: eine multifunktionale Gangway, extrabreite Durchgänge, null Stufen und natürlich ein Fahrstuhl vom Unter- bis zum Oberdeck, wo sich die Großmutter ihr eigenes Reich einrichten wollte. Mit den ursprünglich anvisierten Maßen kamen die Konstrukteure von Diana Yacht Design und Ginton Naval Architects sowie der Designer Guido de Groot schnell an ihre Grenzen. Also zog sich das Konzept für die Lady immer mehr in die Länge, auf 34 Metern – und acht Metern Breite – ließen sich die Wünsche schließlich unterbringen. Größer sollte die Alu-Yacht keinesfalls werden, und für das Lieblingsreiseziel Bahamas schon gar nicht tiefer gehend.
Lange auf ihre schwimmende Ferienvilla warten wollten und mussten die Eigner auch nicht. Von den ersten Skizzen im Dezember 2019 bis zur Ablieferung im November 2021 vergingen weniger als zwei Jahre – ein sportlicher Zeitplan. Guido de Groot, verantwortlich für die eleganten, weichen Exteriorlinien, drückt es so aus: „sehr speziell.“ Kein Wunder, dass gleich zwei Konstruktionsbüros verpflichtet wurden, die parallel arbeiteten und sich gegenseitig über die Schulter schauten. „Das macht eine Yacht am Ende noch besser“, beteuert Hans-Maarten Bais, Kreativdirektor von Diana Yacht Design.
„Lady Lene“ hielt selbst das erfahrene Team ganz schön in Atem. Für barrierefreies Wohnen auf See kann man nicht ohne Weiteres sämtliche Schwellen und Stufen weglassen, an diversen Stellen verlangt die Klassifikationsgesellschaft RINA Wasserschutz-Barrieren, etwa zwischen Cockpit und Salon. Zudem erforderte die bestellte Kopffreiheit – im Salon liegt die Deckenhöhe bei 2,50 Metern – so manches Umdenken: „Wir brauchten eine clevere Konstruktion, schließlich sollte der Raum über den Decken nicht zu üppig werden“, so Bais. Die Lady drohte sonst zu sehr in die Höhe zu wachsen.
Allerdings wartete die größte Herausforderung ganz woanders. Im ursprünglichen Design waren im Rumpf kleine Fenster, eher Bullaugen, vorgesehen. „Als wir mit allem fertig waren, sagte der Kunde, dass er an einer anderen Yacht etwas sehr Schönes gesehen hatte“, berichtet Bais. „Er wollte nun auch so große Fenster für das Unterdeck.“ Das bedeutete also: die Rumpfkonstruktion noch einmal überarbeiten, sämtliche Pläne ändern. Die Ansage des Eigners kam an einem Freitag, am Dienstag darauf sollten die Schweißmaschinen an den Start gehen. Verschiebungen im Zeitplan kamen nicht infrage. Bais und Kollegen nahmen es gelassen. An das Pensum dieses Wochenendes werden sich die Beteiligten trotzdem noch lange erinnern.
Für alles, was sich unter der Wasserlinie abspielt, war Jaron Ginton verantwortlich. Der Konstrukteur schwärmt von der „Carte Blanche“, die er für das Rumpfdesign erhielt und verpasste dem Verdränger einen Bug, der die Wellen schneidet, zudem zog er die Wasserlinie weit in die Länge, um „den Widerstand zu reduzieren.“ Etwas Besonderes ist die Position der Ruderblätter: „Sie liegen nicht wie üblich direkt hinter den Propellern“, zeigt Ginton, „sondern weiter außen.“ Dadurch arbeite der Antrieb effizienter. Und da der Rumpf über den Propellern zudem leicht gewölbt ist, haben diese auch mehr Freiraum zum Drehen. „Das reduziert wiederum die Geräuschemissionen“, stellt der Konstrukteur fest. Für Ruhe an Bord sorgen noch weitere Maßnahmen: etwa die Schalldämmung rund um die Motoren sowie deren räumliche Trennung von den Getrieben.
Komfort, auch auf großer Fahrt, stand bei der Planung oben an. Einen wichtigen Anteil an hoher Seetüchtigkeit und Stabilität hat der von Van Oossanen entwickelte Hull Vane: ein fester Flügel, der quer unter der Badeplattform verläuft und während der Fahrt das Heck leicht anhebt. „Das verringert zusätzlich den Widerstand und flacht die Heckwelle ab“, erklärt Ginton. „Wir konnten das bei den ersten Testfahrten gut sehen.“ Das Gesamtpaket von Rumpfdesign und MAN-V12-Motoren lieferte bis zu 20 Knoten, „dabei haben wir die Lady für 17,5 Knoten geplant“, fügt er lachend hinzu. „Der Kunde war total happy und wir auch.“ Laut Hull-Vane-Verkaufschef Pieter Duzijn spart die Foil-Konstruktion „bei einer Reisegeschwindigkeit von elf Knoten rund 12,5 Prozent Diesel ein und erzielt 14 Prozent mehr Reichweite.“
Für das Interiordesign kooperierte Van der Valk mit dem Team um Carla Guilhem. Das in Miami ansässige Studio hat sich eigentlich auf Villen spezialisiert, „Lady Lene“ war Guilhems erster Yachtauftrag. „Ich wollte, dass die Eigner an Bord das gleiche Gefühl haben wie in ihrem Haus“, berichtet die Designerin, die auch schon die Residenz des Eignerpaars ausstattete. Sie hatten die Vorstellung von einer Art Strandhaus auf dem Wasser: ein sehr schlichtes und ruhiges Ambiente, das mit möglichst wenigen Materialien auskommen sollte. Helle Eiche, Leder und Silk-Georgette-Marmor dominieren die Räume, die Flächen schimmern in Weiß, Grau und Taupe, knallige Töne oder Designs gibt es nicht. Stattdessen ließ die gebürtige Brasilianerin Stoffe und Holzelemente so verlegen und anbringen, dass sie ein dezentes Muster ergeben. Auch Kunstobjekte finden sich kaum; die Gäste sollen lieber nach draußen schauen. Die großen Panoramafenster bilden den Rahmen für die Schönheiten der vorbeiziehenden Landschaft. In den Räumen selbst wirkt fast alles sanft geschwungen oder rund, „sehr feminin“, wie Carla Guilhem betont. Laut Werft sind diese Formen sehr praktisch, sicher und angenehm, falls doch mal jemand ins Schwanken gerät und irgendwo gegenstößt.
Dass sich das Design eines Hauses doch sehr von dem einer Superyacht unterscheidet, war schnell klar, bot aber auch eine besondere Herausforderung. „Jeder Millimeter zählt“, meint Guilhem, „wir mussten jedes Detail, jedes Paneel genau überdenken.“ Zudem habe man an Bord deutlich weniger Raum zur Verfügung, müsse diverse Dinge clever verstecken und immer „die vielen Leitungen und Rohre hinter den Einbaumöbeln im Blick haben“.
Wie noch immer üblich, konnten sich bei der Ausstattung der technischen Areale die Männer durchsetzen, etwa im Ruderhaus von „Lady Lene“. Hier fallen die beiden gewölbten XL-Bildschirme ins Auge, „genau wie die für Computerspiele“, erklärt Bram Kooltjes begeistert und verweist noch auf die Joysticks. Wer braucht schon ein Steuerrad? Kein Wunder, agierte doch der Enkel der Eigner als Projektmanager und direkter Ansprechpartner für die Werft, wie schon zuvor bei der Yacht seines Vaters. Dass der junge Familienvater in absehbarer Zeit eine eigene bestellen würde, war eigentlich keine große Überraschung. Und so liefert Van der Valk mit Edge 65 einen Weekender mit 42 Knoten Höchstgeschwindigkeit und weniger als einen Meter Tiefgang: eine Freude für die seichten Gewässer der Bahamas und die ideale Begleiterin für „LeVen“ und „Lady Lene“. „Unsere erste Yacht mit Außenbordmotoren“, kommentiert Kooltjes. Sein Unternehmen begrüße diese Entwicklung sehr. So liefert der Chef gleich das Credo für die nahe Zukunft: „neue Techniken für neue Kunden“.

Redakteurin News & Panorama